OutdoorNav Starter Kit

The OutdoorNav Starter Kit is a low-cost hardware bundle that allows you to begin autonomous outdoor navigation using Clearpath's OutdoorNav Autonomy Software. It integrates easily onto Husky and Jackal, but is compatible with third-party robots as outlined below.
Item Numbers
Description | Sales Kit |
---|---|
OutdoorNav Starter Kit | 028356 |
OutdoorNav Starter Kit Husky Adapter Cable | 029915 |
OutdoorNav Starter Kit Jackal Adapter Cable | 029914 |
GNSS Antenna Relocation Kit | 028590 |
RealSense D435f Relocation Kit | 028817 |
Mechanical Mounting
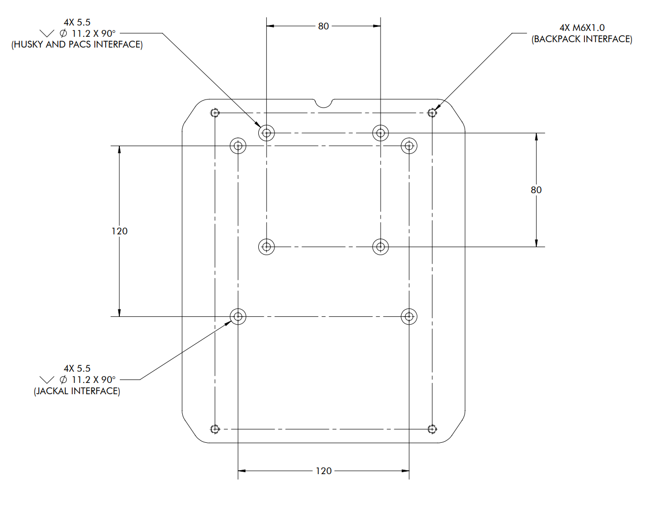
The OutdoorNav Starter Kit can be mounted directly using either its 80 X 80 mm or 120 X 120 mm hole pattern as shown in the following image.

On Jackal, mount the kit using the standard 120 X 120 hole pattern at the front of Jackal.
On Husky, mount the kit on the leading edge of the top plate. Where a PACS-compatible top plate exists, the kit can be mounted directly. When using an older Husky without a PACS-compatible top plate, it will be necessary to drill your own holes.
Refer also to the OutdoorNav Starter Kit Hardware Checklist.
Electrical Integration
Power Integration
The OutdoorNav Starter Kit includes a 1 m IP67 power cable to provide power from the base platform to the Starter Kit. Adapter cables can be used for robot-specific integrations.
-
For power integration on Husky, purchase the OutdoorNav Starter Kit Husky Adapter Cable, as listed in Item Numbers.
-
For power integration on Jackal, purchase the OutdoorNav Starter Kit Jackal Adapter Cable, as listed in Item Numbers.
-
For power integration on a third-party robot, an adapter cable will need to be created.
-
The provided 1 m power cable is terminated with a Molex Mini-Fit Jr connector (Molex 0039012025).
-
The adapter cable should use the appropriate mating connector (Molex 0039013029).
-
The pinout is illustrated in the figure below:
- Pin 1: VIN (18 to 75 VDC, 7 A max)
- Pin 2: GND
Starter Kit power cable connector
-
Data Integration
The OutdoorNav Starter Kit includes a 1 m IP67 Ethernet cable for data connectivity between the base platform to the Starter Kit. Refer to OutdoorNav Platform Computer Checklist for addititional details on data connectivity.
Software Integration
The required software for the OutdoorNav Starter Kit is pre-installed. However, the base platform computer must be configured as outlined in the OutdoorNav Platform Computer Checklist.